2-Familienhaus in ruhiger Lage in hervorragendem Zustand!
49661 Cloppenburg, Einfamilienhaus zum Kauf
Objektdaten
- Objekt IDVK 01/329
- Objekttypen
- Adresse49661 Cloppenburg
- Wohnfläche ca.171 m²
- Grundstück ca.969 m²
- Nutzfläche ca.59 m²
- Gesamtfläche ca.230 m²
- Zimmer7
- Baujahr1966
- Käuferprovision3,00 % des Kaufpreises inkl. MwSt.
- Kaufpreis395.000 EUR
Energieausweis
- EnergieausweistypVerbrauchsausweis
- Ausstellungsdatum23.07.2025
- Gültig bis22.07.2035
- Baujahr lt. Energieausweis2017
- Endenergieverbrauch83,60 kWh/(m²·a)
- Warmwasser enthaltenja
- EnergieeffizienzklasseC
83,60 kWh/(m²·a)
Objektbeschreibung
Beschreibung
Das 2- Familienhaus wurde 1966 erbaut. Es wurden laufend Renovierungs-und Sanierungsmaßnahmen durchgeführt. 2017 wurde das Haus komplett saniert. Es wurden neue 3-fach verglaste Fenster eingebaut (2 bleiverglaste Fenster wurden aus emotionalen Erinnerungsgründen nicht erneuert). Die Elektrik wurde komplett erneuert. Eine moderne EDV-Verkabelung, wie sie in Neubauten verbaut sind, ist vorhanden. Die Heizung des Obergeschosses wurde ebenfalls erneuert. Die Bäder wurden außerdem im modernen Design saniert.
Die Obergeschoss-Wohnung wurde nochmals renoviert und mit modernen Bodenbelägen versehen.
Das Innere des Hauses steht einem Neubau in nichts nach.
Der Garten ist optimal nach Süden ausgerichtet und bietet mit einer Grundstücksfläche von 969 m² viel Platz zur Entfaltung.
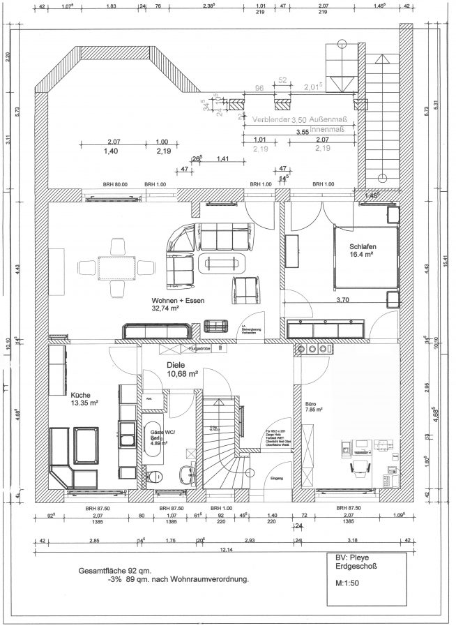
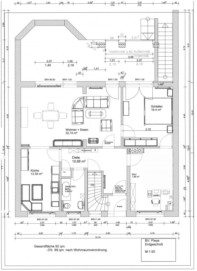
Grundriss Erdgeschoss:
geräumiges Wohn-/Esszimmer, Schlafzimmer, Büro/Kinderzimmer, Küche, Badezimmer, Flur, große überdachte Terrasse, Garage.
Die Wohnfläche der Erdgeschoss-Wohnung beträgt etwa 89,20 m². Die überdachte Terrasse ist in der Berechnung nicht enthalten. Die Nutzfläche der Erdgeschoss-Wohnung sind geschätzt knapp 60 m².
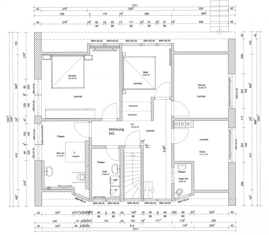
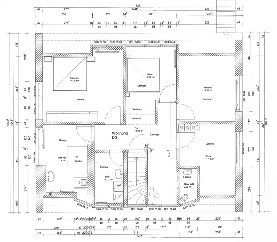
Grundriss Obergeschoss:
Wohnzimmer, Schlafzimmer, Kinderzimmer, Büro, Küche, Badezimmer, HWR, Gäste-WC, Flur, Balkon (auf der Grundrisszeichnung nicht abgebildet).
Die Wohnfläche der Obergeschoss-Wohnung beträgt etwa 82,10 m². Die Fläche des Balkones ist in der Berechnung nicht enthalten.
Grundriss Kellergeschoss:
Das Haus besitzt einen Vollkeller mit Partyraum, einem großen Kellerraum und drei kleineren Kellerräumen
Die Nutzfläche des Kellergeschosses wird mit etwa 70 m² geschätzt.
Das Haus verfügt über 2 Energieausweise:
Erdgeschoss:
Energieausweis:
Energieausweis Typ: Verbrauchsausweis
Endenergiebedarf: 198,9 kWh(m² a)
Wesentlicher Energieträger: Erdgas
Baujahr der Heizung: 2017
Obergeschoss:
Energieausweis:
Energieausweis Typ: Verbrauchsausweis
Endenergiebedarf: 83,6 kWh(m² a)
Wesentlicher Energieträger: Erdgas
Baujahr der Heizung: 2017
Vereinbaren Sie gleich einen Besichtigungstermin! Wir freuen uns, Ihnen diese Immobilie anbieten zu dürfen!
Kontaktdaten
- NameHerr Stefan Gardewin
- FirmaImmobilienkontor
- AdresseSevelter Straße 62
49661 Cloppenburg - E-Mail Zentrale
- E-Mail Direkt
- Tel. Zentrale
Lage
Das 2-Familienhaus befindet sich in Cloppenburg-Nord.
Die dargestellte Position der Immobilie ist nur eine ungefähre Angabe.




























