Doppelhaushälfte in Osnabrück zu verkaufen – einziehen und wohlfühlen! (Kaufpreis reduziert!)
49088 Osnabrück, Reihenendhaus zum Kauf
Objektdaten
- Objekt IDVK 02/323
- Objekttypen
- Adresse49088 Osnabrück
- Wohnfläche ca.115 m²
- Grundstück ca.645 m²
- Nutzfläche ca.54 m²
- Gesamtfläche ca.169 m²
- Zimmer4
- Baujahr1959
- Verfügbar abnach Vereinbarung, auch kurzfristig möglich.
- Käuferprovision3 % des tatsächlichen Kaufpreises inkl. MwSt.
- Kaufpreis365.000 EUR
Energieausweis
- EnergieausweistypVerbrauchsausweis
- Ausstellungsdatum29.08.2025
- Gültig bis28.08.2035
- Baujahr lt. Energieausweis1999
- PrimärenergieträgerErdgas
- Endenergieverbrauch194,20 kWh/(m²·a)
- Warmwasser enthaltenja
- EnergieeffizienzklasseF
194,20 kWh/(m²·a)
Objektbeschreibung
Beschreibung
Dieses Doppelhaus besticht durch helle Räume und einer ruhigen Lage. Von dem ursprünglichen Baujahr aus dem Jahr 1959 ist nahezu nichts mehr zu erkennen. Mit viel Energie und Herzblut haben die Eigentümer diese Immobilie vor etwa 13 Jahren saniert. Es wurden energetische Maßnahmen durchgeführt und komplett renoviert - man kann sagen, dass man ohne großen Aufwand einziehen kann. Die Fenster wurden beispielsweise 1988 als Kunststofffenster erneuert. 1999 wurde die Heizung erneuert. Die umfänglichste Sanierung war jedoch 2012.
Die Terrasse und der Garten sind ideal nach Süden ausgerichtet. Durch den umliegenden Baumbestand ist das Grundstück fast nicht einsehbar.
Die Bilder dieses Angebotes sagen alles: das Haus kann mit modernen Häusern mithalten. Ein gelungener Kompromiss zwischen Ruhe und schnell in der Stadt.
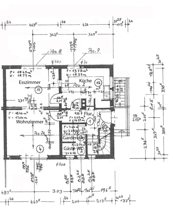
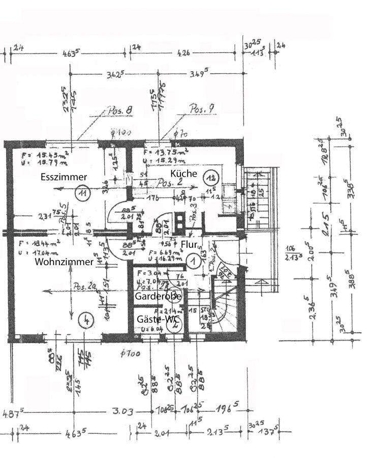
Grundriss Erdgeschoss:
Wohnzimmer, Esszimmer, Küche (mit toller Einbauküche, Granitarbeitsplatten und Hochglanzfronten), kleiner Abstellraum, Gäste-WC, Garderobe, Flur, Terrasse
Grundriss Obergeschoss:
Elternschlafzimmer, 2 Schlafzimmer, Tageslicht- Duschbad, Tageslicht Badezimmer mit WC und Bidet und Waschbecken, Flur
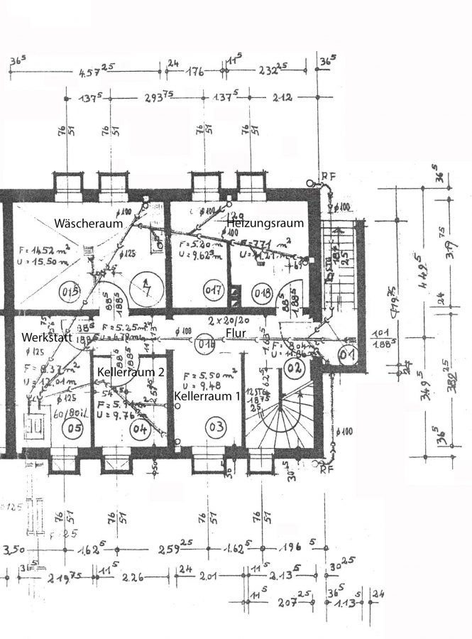
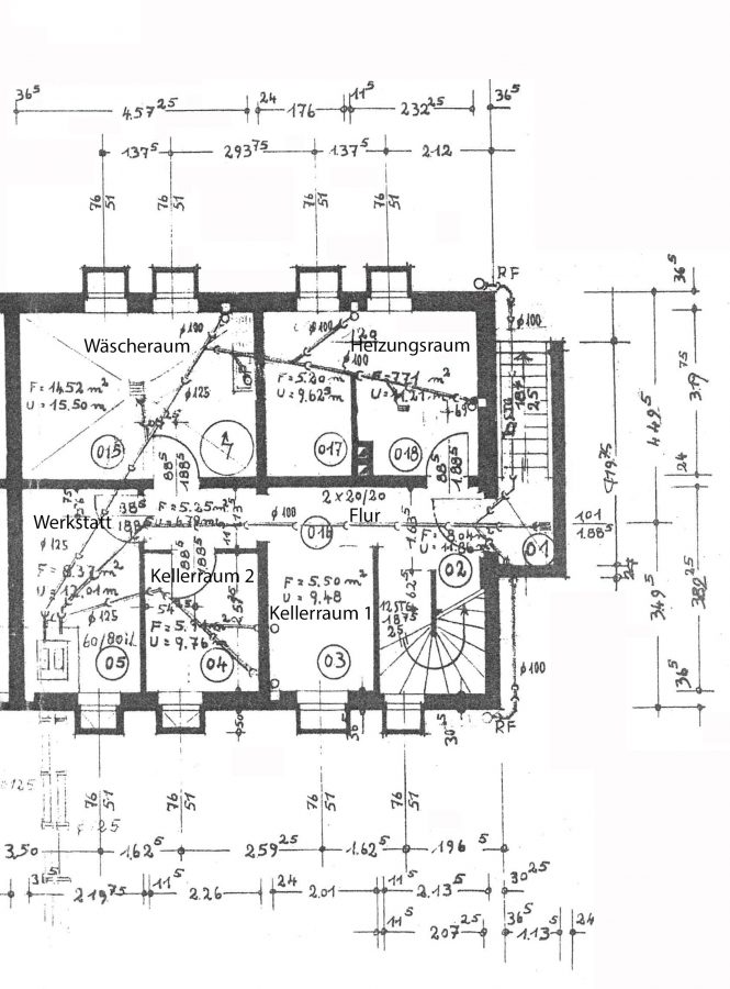
Grundriss Kellergeschoss (Vollkeller):
2 Kellerräume, Werkstatt, Wäschekeller, Heizungskeller mit abgemauertem Abstellbereich, Flur. Der Keller ist auch über eine Außentreppe erreichbar.
Bei dem Grundstück handelt es ich um ein Erbbaugrundstück. Der derzeitige Erbbauzins beläuft sich auf rund 2.700 Euro pro Jahr. Der Erbbaurechtsvertrag läuft jetzt noch ca. 60 Jahre und kann auch länger vereinbart werden. Bei einem sog. Heimfall (Ende des Erbbaurechtsvertrages) muss der Grundstückseigentümer den Erbbaurechtsnehmer (Hauseigentümer) gem. des Erbbaurechtsvertrages entschädigen. Das bedeutet nicht, dass das Eigentum am Haus am Ende der Laufzeit an den Grundstückseigentümer übertragen werden muss.
Energieausweis:
Energieausweis Typ: Verbrauchsausweis
Endenergiebedarf: 194,20 kWh(m² a)
Wesentlicher Energieträger: Erdgas
Baujahr der Heizung: 1999
Vereinbaren Sie noch heute einen Besichtigungstermin! Es lohnt sich!
Sonstige Informationen
Bitte senden Sie uns zunächst eine Anfrage über das jeweilige Kontaktformular. Erst wenn uns Ihre Daten vollständig vorliegen, können wir Ihre Anfrage bearbeiten. Sie erhalten von uns sodann eine Antwortmail mit einem aussagekräftigen Exposé. Wenn Ihnen das Angebot und insbesondere die Lage der angebotenen Immobilie zusagt, vereinbaren wir gerne eine Besichtigung für Sie. Alle angegebenen Daten stammen von unserem Auftraggeber. Für die Richtigkeit und Vollständigkeit können wir trotz größter Sorgfalt keine Gewähr übernehmen. Die aufgeführten Pläne (z.B. Grundrisszeichnungen, Ansichten, Schnittzeichnungen) und Berechnungen dienen der genaueren Übersicht, diesbezüglich besteht kein Anspruch auf Genauigkeit.
Grundsätzlich sind eingezeichnete bzw. fotografierte Möblierungen und Einrichtungen (auch Kamine und Öfen) nicht im Kaufpreis enthalten, es sei denn, dass dieses in der Beschreibung ausdrücklich benannt wird.
Über eine Besichtigung der von uns angebotenen Objekte würden wir uns nach vorheriger Absprache freuen!
Ihre personenbezogenen Daten werden entsprechend den gesetzlichen Datenschutzbestimmungen ausschließlich zum Zweck der Kontaktaufnahme verwendet!
Bitte haben Sie Verständnis dafür, dass wir Ihnen nähere Auskünfte nur nach Angabe Ihrer vollständigen Anschrift und Telefonnummer geben können, gleiches gilt für die Zusendung eines detaillierten Exposés.
Unsere Bürozeiten sind montags bis donnerstags von 8.00 - 17.00 Uhr sowie freitags von 8.00 - 14.00 Uhr. Besichtigungstermine vereinbaren wir gerne nach Ihren Wünschen!
Kontaktdaten
- NameHerr Stefan Gardewin
- FirmaImmobilienkontor
- AdresseSevelter Straße 62
49661 Cloppenburg - E-Mail Zentrale
- E-Mail Direkt
- Tel. Zentrale
Lage
Dieses Reihenendhaus liegt in Osnabrück, Ortsteil Dodesheide.
Die dargestellte Position der Immobilie ist nur eine ungefähre Angabe.

































