

Im Alleinvertrieb freuen wir uns, Ihnen dieses außerordentlich gepflegte Einfamilienhaus im beliebten Philosophenviertel anbieten zu dürfen.
Das Haus ist 1982 von den Eigentümern gebaut worden. Es liegt an einer sehr ruhigen Anliegerstraße. Bodentiefe Elemente im Wohnzimmer lassen viel Licht in die Räumlichkeiten. Insgesamt 6 Wohn- und Schlafzimmer bieten auch einer großen Familie ausreichend Platz.
Die Erdgas-Brennwertheizung wurde 1999 erneuert. Die Dachflächen des Dachgeschosses sind überwiegend erneuert worden.
Der Grundriss gestaltet sich wie folgt:
Erdgeschoss:
großes Wohn-/Esszimmer, Büro, Küche, Gäste-WC, Hauswirtschaftsraum, 2 Abstellräume, Heizungsraum, Garage, Terrasse (teils überdacht)
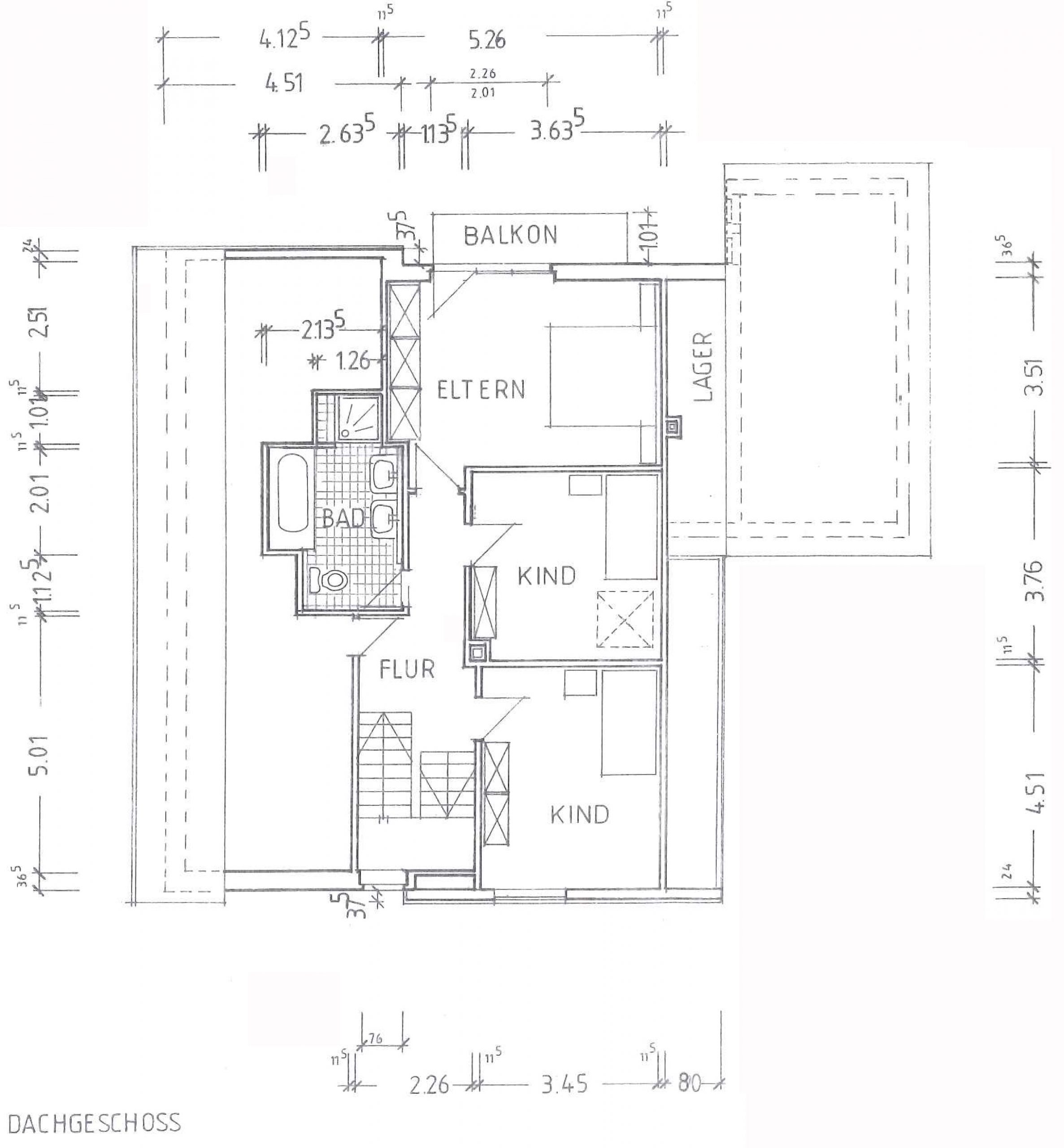
Dachgeschoss:
Elternschlafzimmer mit Balkon, 3 Kinderzimmer (auf dem Grundriss ist ein Raum leider nicht abgebildet)., Badezimmer (Tageslichtbad mit Badewanne und Dusche, Flur
Der Garten ist nahezu uneinsehbar.
Energieausweis:
Energieausweis Typ: Verbrauchsausweis
Endenergiebedarf: 167,95 kWh(m² a)
Wesentlicher Energieträger: Erdgas
Baujahr der Heizung: 1999
Bitte senden Sie uns zunächst eine Anfrage über das jeweilige Kontaktformular. Erst wenn uns Ihre Daten vollständig vorliegen, können wir Ihre Anfrage bearbeiten. Sie erhalten von uns sodann eine Antwortmail mit einem aussagekräftigen Exposé. Wenn Ihnen das Angebot und insbesondere die Lage der angebotenen Immobilie zusagt, vereinbaren wir gerne eine Besichtigung für Sie. Alle angegebenen Daten stammen von unserem Auftraggeber. Für die Richtigkeit und Vollständigkeit können wir trotz größter Sorgfalt keine Gewähr übernehmen. Die aufgeführten Pläne (z.B. Grundrisszeichnungen, Ansichten, Schnittzeichnungen) und Berechnungen dienen der genaueren Übersicht, diesbezüglich besteht kein Anspruch auf Genauigkeit.
Grundsätzlich sind eingezeichnete bzw. fotografierte Möblierungen und Einrichtungen (auch Kamine und Öfen) nicht im Kaufpreis enthalten, es sei denn, dass dieses in der Beschreibung ausdrücklich benannt wird.
Über eine Besichtigung der von uns angebotenen Objekte würden wir uns nach vorheriger Absprache freuen!
Ihre personenbezogenen Daten werden entsprechend den gesetzlichen Datenschutzbestimmungen ausschließlich zum Zweck der Kontaktaufnahme verwendet!
Bitte haben Sie Verständnis dafür, dass wir Ihnen nähere Auskünfte nur nach Angabe Ihrer vollständigen Anschrift und Telefonnummer geben können, gleiches gilt für die Zusendung eines detaillierten Exposés.
Unsere Bürozeiten sind montags bis freitags von 8.00 - 17.00 Uhr. Besichtigungstermine vereinbaren wir gerne nach Ihren Wünschen!
Dieses schöne Einfamilienhaus ist im Philosophenviertel gelegen.
Die dargestellte Position der Immobilie ist nur eine ungefähre Angabe.













