Einfamilienhaus im Komponistenviertel – Tolle Lage und ein familienfreundliches Haus – was will man mehr!
49661 Cloppenburg, Einfamilienhaus zum Kauf
Objektdaten
- Objekt IDVK 01/326
- Objekttypen
- Adresse49661 Cloppenburg
- Wohnfläche ca.151 m²
- Grundstück ca.743 m²
- Nutzfläche ca.30 m²
- Gesamtfläche ca.181 m²
- Baujahr1980
- Verfügbar abnach Vereinbarung
- Käuferprovision3% des tatsächlichen Kaufpreises inkl. MwSt.
- Kaufpreis425.000 EUR
Energieausweis
- EnergieausweistypVerbrauchsausweis
- Ausstellungsdatum03.12.2025
- Gültig bis02.12.2035
- Baujahr lt. Energieausweis2023
- PrimärenergieträgerErdgas
- Endenergieverbrauch91,97 kWh/(m²·a)
- Warmwasser enthaltenja
- EnergieeffizienzklasseC
91,97 kWh/(m²·a)
Objektbeschreibung
Beschreibung
Dieses Einfamilienhaus besticht durch einen hervorragend gestalteten Grundriss. Auch eine Familie mit 3 Kindern findet hier ausreichend Platz. Die Eigentümer haben das Haus laufend renoviert und saniert. Das Badezimmer im Dachgeschoss beispielsweise ist 2012/2013 saniert worden. Die Ergas-Brennwert-Heizung von der Firma Weishaupt ist 2023 erneuert worden.
Ein blühender, pflegeleichter Garten rundet das Gesamtangebot mehr als ab.
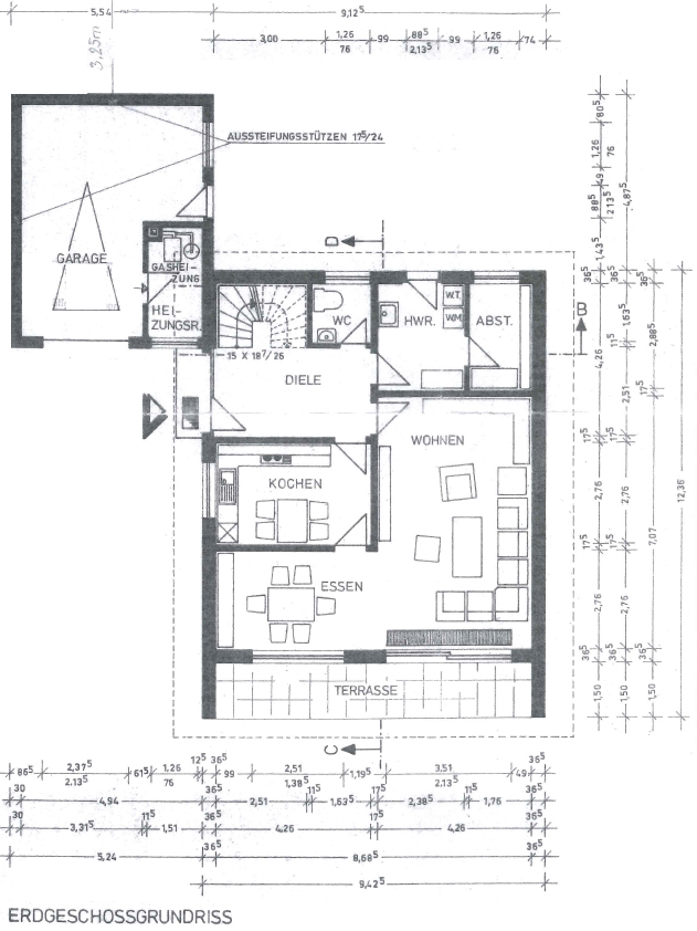
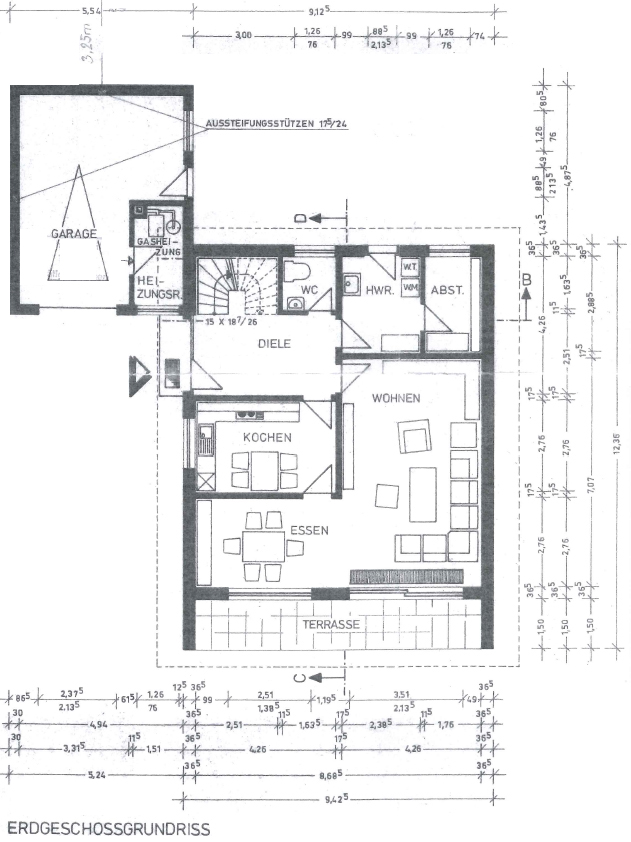
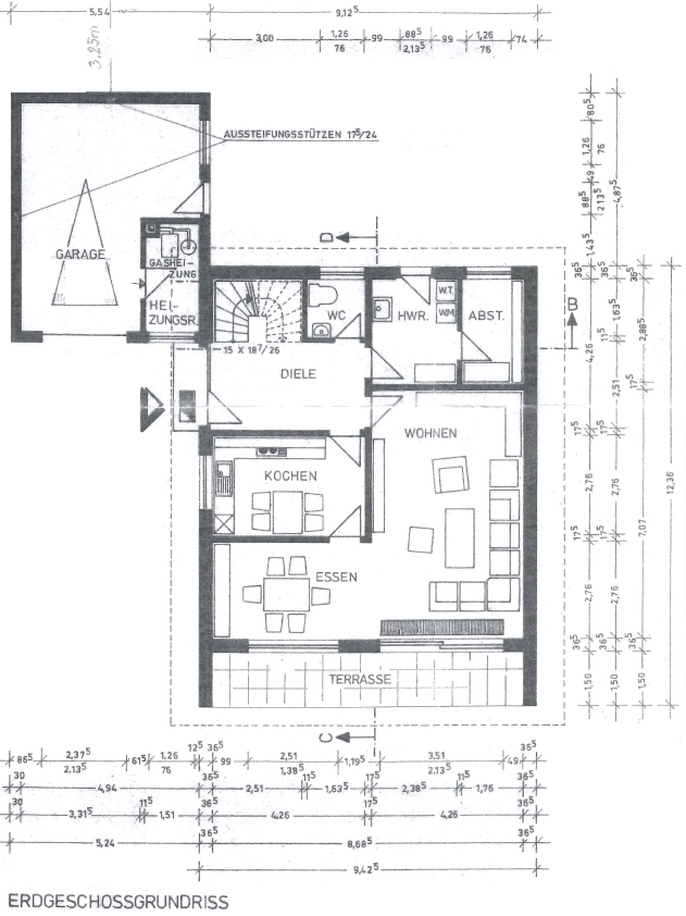
Grundriss Erdgeschoss: Wohn-/Esszimmer, Küche, Hauswirtschaftsraum, Gäste-WC, Abstell-/Vorratsraum, Flur, Garage mit Heizungsraum, überdachte Terrasse
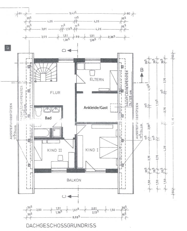
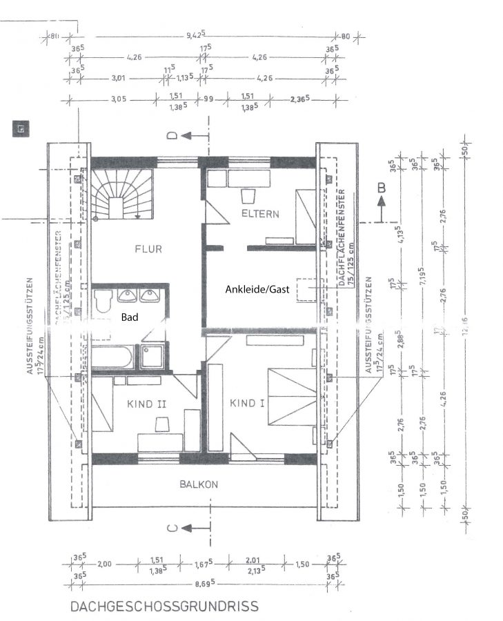
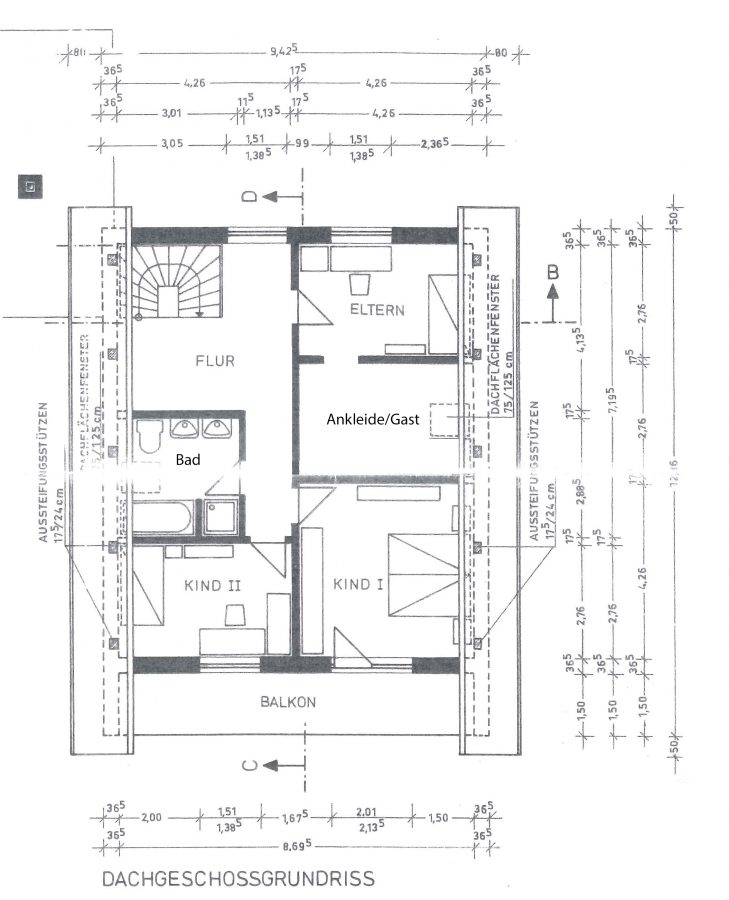
Grundriss Obergeschoss: Elternschlafzimmer mit separater Ankleide (die Ankleide war ursprünglich ein Kinderzimmer und kann auch wieder als Kinderzimmer genutzt werden), 2 Kinderzimmer, Badezimmer, Flur mit Büro-/Lesebereich, Loggia
Energieausweis:
Energieausweis Typ: Verbrauchsausweis
Endenergiebedarf: 91,97 kWh(m² a)
Wesentlicher Energieträger: Erdgas
Baujahr der Heizung: 2023
Sonstige Informationen
Bitte senden Sie uns zunächst eine Anfrage über das jeweilige Kontaktformular. Erst wenn uns Ihre Daten vollständig vorliegen, können wir Ihre Anfrage bearbeiten. Sie erhalten von uns sodann eine Antwortmail mit einem aussagekräftigen Exposé. Wenn Ihnen das Angebot und insbesondere die Lage der angebotenen Immobilie zusagt, vereinbaren wir gerne eine Besichtigung für Sie. Alle angegebenen Daten stammen von unserem Auftraggeber. Für die Richtigkeit und Vollständigkeit können wir trotz größter Sorgfalt keine Gewähr übernehmen. Die aufgeführten Pläne (z.B. Grundrisszeichnungen, Ansichten, Schnittzeichnungen) und Berechnungen dienen der genaueren Übersicht, diesbezüglich besteht kein Anspruch auf Genauigkeit.
Grundsätzlich sind eingezeichnete bzw. fotografierte Möblierungen und Einrichtungen (auch Kamine und Öfen) nicht im Kaufpreis enthalten, es sei denn, dass dieses in der Beschreibung ausdrücklich benannt wird.
Über eine Besichtigung der von uns angebotenen Objekte würden wir uns nach vorheriger Absprache freuen!
Ihre personenbezogenen Daten werden entsprechend den gesetzlichen Datenschutzbestimmungen ausschließlich zum Zweck der Kontaktaufnahme verwendet!
Bitte haben Sie Verständnis dafür, dass wir Ihnen nähere Auskünfte nur nach Angabe Ihrer vollständigen Anschrift und Telefonnummer geben können, gleiches gilt für die Zusendung eines detaillierten Exposés.
Unsere Bürozeiten sind montags bis donnerstags von 8.00 - 17.00 Uhr sowie freitags von 8.00 - 14.00 Uhr. Besichtigungstermine vereinbaren wir gerne nach Ihren Wünschen!
Kontaktdaten
- NameHerr Stefan Gardewin
- FirmaImmobilienkontor
- AdresseSevelter Straße 62
49661 Cloppenburg - E-Mail Zentrale
- E-Mail Direkt
- Tel. Zentrale
Lage
Das Einfamilienhaus ist im Komponistenviertel gelegen.
Die dargestellte Position der Immobilie ist nur eine ungefähre Angabe.






















